DGS
Installation, details, options

For a larger view, please mouseover the image.
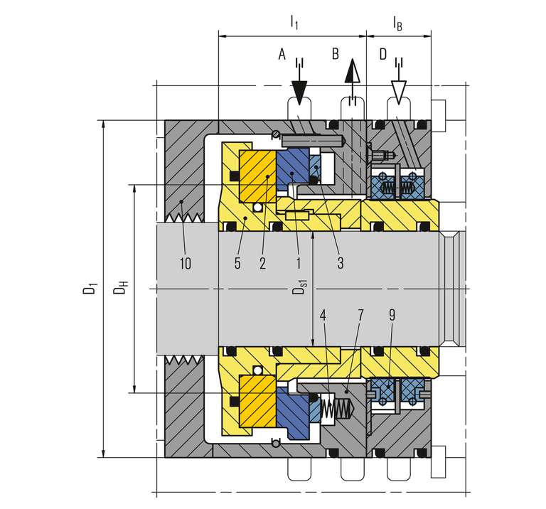
DGS Single seal
Application: where leakage of the product into the atmosphere is not harmful, e.g. from air or nitrogen compressors or the axial cavity does not allow a tandem seal (e.g. geared compressors). This version allows process gas leakage to the corresponding flare / vent connection. Primary seal leakage is dissipated with the separation gas to the vent. The gas to be sealed must also be filtered and routed to the seal chamber via connection “A”. The resulting flow from the sealed space to the impeller side prevents contaminated / wet gas reaching the Dry Gas Seal on the process gas side, e.g. towards the labyrinth.

A Seal gas supply
B Vent
D Separation gas supply

For a larger view, please mouseover the image.
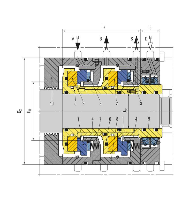
DGS Double seal
Application: where product leakage to the atmosphere/flare is unacceptable or for low pressure applications. Seal gas leakage into the product needs to be permitted (seal gas pressure p3 > p1). This is used when a neutral seal gas is available at the appropriate pressure. Typical applications can be found in the chemical and petrochemical industries, e.g. in HC gas compressors. A seal gas, e.g. nitrogen at a pressure higher than the product pressure, is supplied between the seals via connection “C”. Part of the seal gas leakage dissipates to the bearing side, while the other part goes to the product.

A Buffer gas supply
C Seal gas supply
S Vent
D Separation gas supply
For a larger view, please mouseover the image.
DGS Tandem seal
Application: where no N2 is available and minimal process gas leakage to the atmosphere is acceptable, e.g. gas pipeline compressors. The seal on the bearing side is intended as a safety seal. The tandem arrangement offers particularly good operational safety. The process side and bearing side seals are able to withstand the full pressure. In normal operation, only the process side seal reduces the full pressure. The space between the process side and bearing side seals is routed to the flare via connection “B”. The pressure to be sealed on the bearing side corresponds to the flare pressure. There is thus very little leakage to the bearing side or to the vent. If the primary seal fails, the secondary seal is activated as a back-up and operates at primary seal conditions.

A Primary seal gas supply
B Primary vent
S Secondary vent
D Separation gas supply
For a larger view, please mouseover the image.
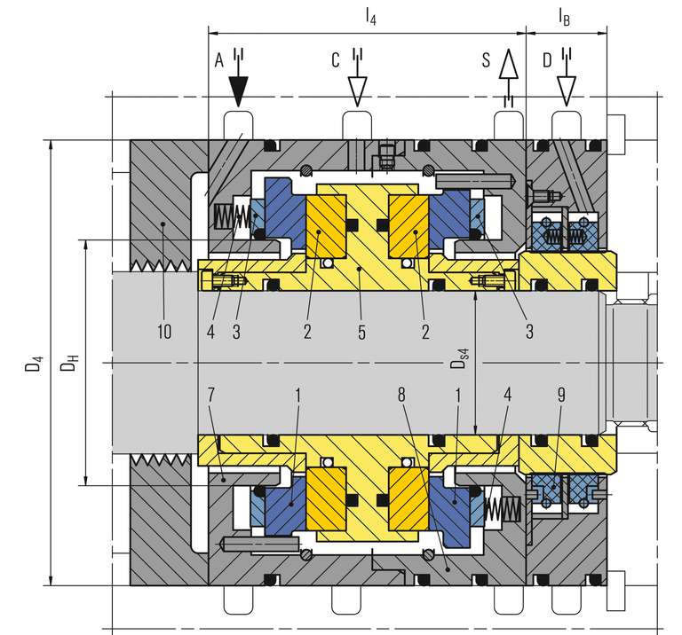
DGS Tandem seal with intermediate labyrinth
Application: where product leakage to the atmosphere is unacceptable, e.g. H2, ethylene or propylene compressors. With this type of seal, the product pressure to be sealed is reduced via the seal on the process side. The entire process gas leakage is routed to the flare via connection “B”. The bearing side seal is pressurized with secondary seal gas (nitrogen) via connection “C”. The pressure of the secondary seal gas ensures the flow through the labyrinth to the flare/tapping point.

A Primary seal gas supply
B Primary vent
C Secondary gas seal supply
S Secondary vent
D Separation gas supply